Planning permission was granted in January 2022 for this complex infill project that created a unique three bedroom dwelling that was developed with the client in Virtual Reality.
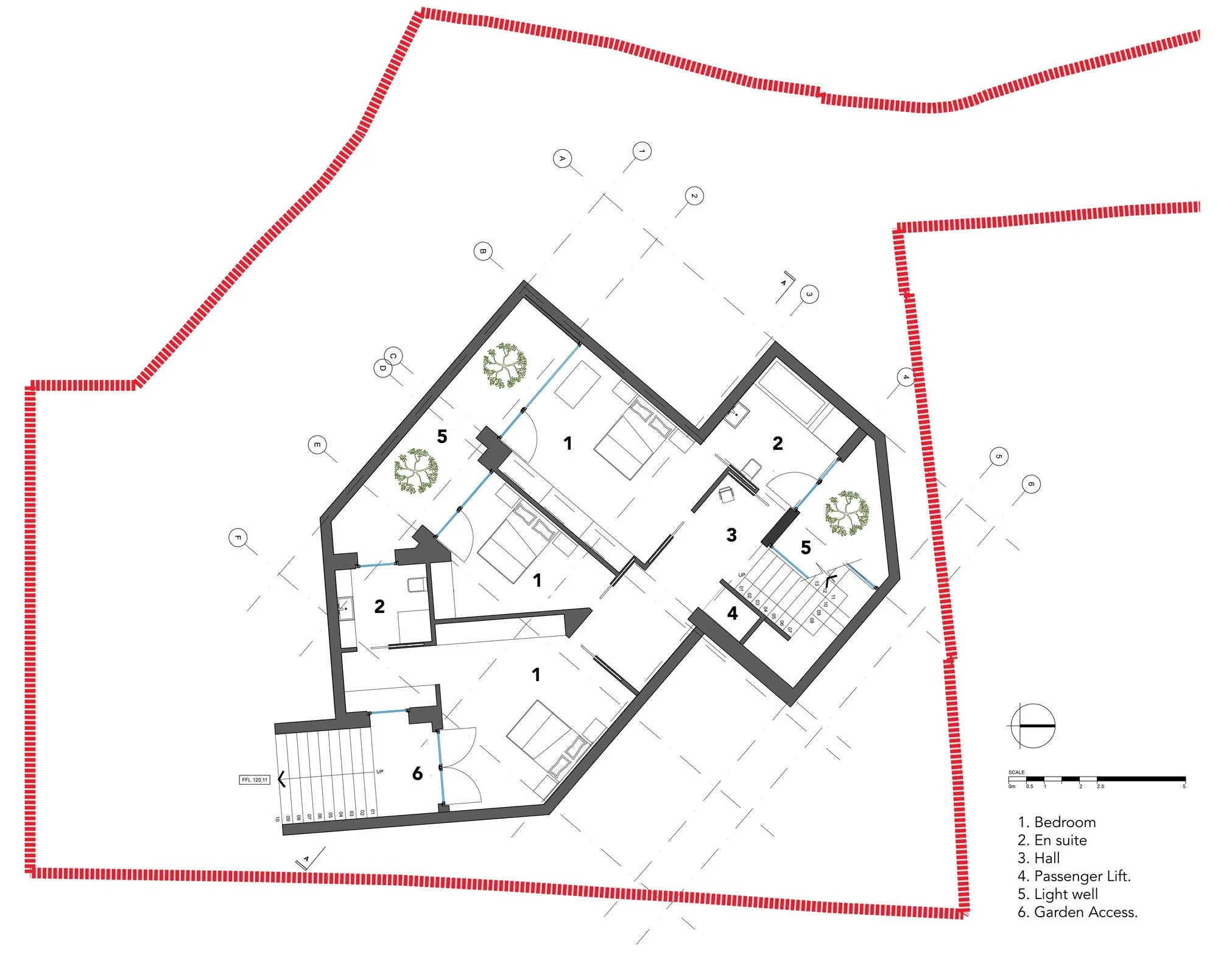
Our client’s existing site benefits from being in two separate land titles. On one is their main dwelling, on the other is an existing outbuilding which provides ancillary accommodation to the main house. Our proposal replaces the outbuilding with a new single dwelling which our client wishes to move into once complete. Due to the site’s urban context (surrounded by existing dwellings) it had to be considerate and inward looking to create a haven of peace. To limit the homes visible bulk, living accommodation is at the ground floor with bedrooms in the basement below. To make the basement a pleasant space to inhabit, natural light enters via carefully positioned and proportioned light wells. The design was created to provide high quality accommodation for the occupant of the house whilst ensuring there are no harmful results to the character nor residential amenities of neighbours and future occupants of the site.
Floor Plans
As can be seen from the below floor plans the site has a very irregular shape. The foundations of an old swimming pool meant that a basement light well could be created without effecting the mature Walnut tree’s root structure. The final design responds to the site shape, orientation, and mature Walnut tree. Therefore, the principal spaces at the ground floor look south-east and south-west to take the most benefit from the sun-path, vistas from the site and celebrate the Walnut Tree as a focal point that the kitchen, sun lounge and living room all face.
Design Process
The design was was developed using Virtual Reality software as well as still CGI images that are shown in the gallery below:
Screen recording of movement through Virtual Reality model.
Alternative Design
The scheme that secured planning permission in 2022 was the evolution of the first design we presented to the client. However, the client asked us to come up with a different solution so they could be sure that the first design was the best solution for them. We tasked Michael Kaczmarczyk who worked with us at the time with the opportunity to create his own response to the site in order to present the client with a radically different design to the first scheme.
 
          
        
       
                 
                 
                 
                 
                 
                 
                 
                 
                 
                 
                 
                